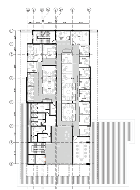
CTC Engineering: Office Building
Professional Experience
Khartoum, Sudan
Dec 2014 - Aug 2016
Role: Architect

The Office building is a three story building, with the concept of two cubes fusing together in order to create a work environment with as much natural light and ventilation as possible.
Working as an architect in CTC Group under the supervision of senior project manager, Fatima Elsanousi and head of design, Ghada Omer I was tasked with redesigning the exterior façade of the building, developing complete construction drawings for the elevations, exterior cladding and curtain walls, and the design the interior of the main reception.

Ground Floor Plan





South Elevation

CEC Office Reception Interior Design

CEC Office Building - Built
Source: CTC Group Facebook Page
Source: CTC Group Facebook Page